| 旅館業(簡易宿所・旅館・ホテル等)の申請で、図面が必要と言われたけれど
「どんな図面を準備すればいいのか、イメージが湧かない…」
という方は多いのではないでしょうか?
家の間取図くらいなら想像できても、旅館業の申請に必要な図面は
建築図面とも異なるため、
「どの図面が必須なのか」
「どれくらい正確に描けばいいのか」
などが分かりにくいと感じる方も多いと思います。
そこで今回は、カピバラ事務所でもよく作成のご相談を受ける
「旅館業の申請で必ず必要になる図面」を、イメージできるように解説します
旅館業の申請に次要な図面とは?趣旨と目的
旅館業(簡易宿所・旅館・ホテル等)の許可申請では、
建築基準法・消防法・旅館業法に基づき、施設の安全性・衛生・面積要件を確認するための図面が必要になります。
自治体ごとに細部は異なるものの、一般的に求められる図面は次のとおりです。
【旅館業の申請に一般的に必要となる図面一覧】
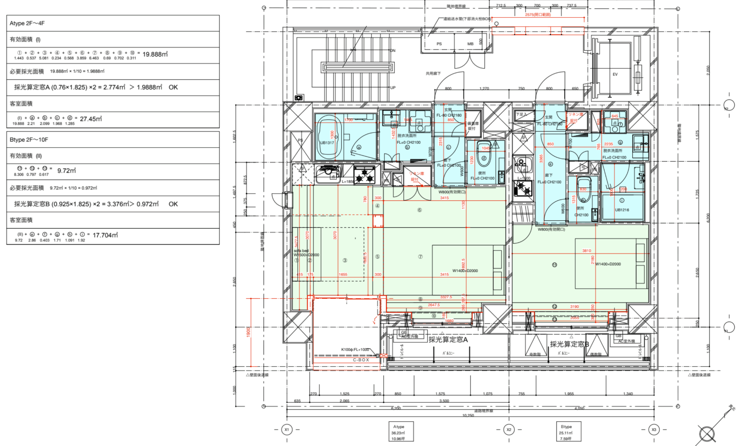
1.平面図(各階)〈必須〉
・各階の間取りが分かる図面
・室名(寝室、台所、風呂、トイレ、廊下、寝具(和洋を区別) など)を明記
・寸法(m²)を明記
・換気・採光に関する窓位置も必要
(客室面積と有効面積算定図のイメージ)

旅館業では、1人あたりの面積の基準があり、広さにより定員が決まります。
面積算定の方法は、自治体により異なるものの、一般的には、通常、人が立入可能な面積で算定します。
したがって、壁芯面積ではなく内法面積であり、押入やCL、床の間や作りつけの棚などを除きます。
(有効面積算定のイメージ)

最高面積にも基準があるため、窓の面積算定が求められる場合もあります。
平面図は、旅館業法で最も重視される図面です。
2.立面図(外観の南北東西)〈ほぼ必須〉
・建物の外観を4方向から示した図面
(東西南北立面図のイメージ)

善良な風俗維持の観点から、自治体によっては、外観の着色が求められることもあります。
(外観に着色した立面図のイメージ)

3.断面図(必要に応じて)
・建物の高さ・階高・天井高さ・床の構造が分かる
・換気量・採光量の判断に使われることもある
(建物断面図のイメージ)

4.配置図(敷地内の建物の位置)〈必須〉
道路・隣地境界線との距離、駐車場や出入口の位置、水道や排水設備の位置を確認するために作成します。
1階の平面図と兼用することもあります。
(配置図のイメージ)

5.給排水設備図(平面図/立面図)
・キッチン・洗面・浴室・トイレなどの給水・排水経路
衛生設備の状況把握のために作成します。湯・水・排水の区別がしやすいように着色します。
(給排水を区別した平面図のイメージ)


(給排水の区別をした立面図のイメージ)

6.換気設備図
特に木造戸建ての簡易宿所で必要になることが多く、旅館業法の採光・換気基準を満たすための窓の大きさや居室ごとの面積と窓の面積の比率を確認するために作成します。
(換気設備図の平面図のイメージ)

7.照明設備図や照明計画
照明設備図は、建物の中の照明設備の位置を示す図面です。
照明器具(天井照明、ダウンライト、ブラケットライト(壁付け)、間接照明、非常灯(避難用)を図記号で表記します。
(照明設備のプロット図と照明設備計画のイメージ)


8.ガス配管図
ガス配管図は、建物の中で ガスがどこを通って、どこに届いているのか を示した図面です。
キッチンなどでガスを使用する場合に作成します。
(ガス配管図のイメージ)

9.消防用設備等の平面図(消防署提出用)
・火災報知器(自火報・特定小規模自火報)の位置
・誘導灯の位置
・消火器の位置
・避難経路図・避難口の掲示
(自動火災報知設備設計時のイメージ)

消防法に基づく消防設備の設置位置を示すために作成します。
消防法令適合通知書交付申請や使用開始届が提出された場合、消防はこれをもとに立入検査を行います。
10.付近見取図
旅館業の許可申請を行うと、保健所は、営業施設の近隣約110m以内に存在する社会教育施設(公園・保育園・学校など)に対して意見照会を行います。そのために施設から半径110m、300mなどの付近見取図を求められます。同心円の作成方法も自治体によって異なるため、注意しましょう。
いかがでしたでしょうか。
旅館業の申請に必要な図面について、イメージがつかめましたか
旅館業の許可申請では、平面図・立面図・配置図・消防用設備図など、
必ず提出しなければならない図面が複数あり、しかも内容の正確性がとても重要になります。
しかし、既存建物の場合、
- 図面を紛失してしまった
- 建物の間取りが過去に変更されている
- 消防図面と整合していない
といった理由でお困りの方も少なくありません。
くるみ事務所では、旅館業申請に必要な図面の作成・修正のご相談にも対応しています
「図面がない…」「どこまで描けばいいのかわからない…」
といったお悩みがあれば、どうぞお気軽にご相談ください |